Las Casona
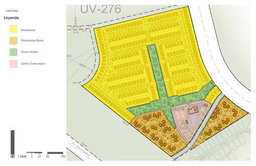
El proyecto inmobiliario ‘La Casona Fase-II’ se ubica en la ciudad de Santa Cruz de la Sierra Zona Este en el polígono identificado en el plano de zonificación como UV-276 con una superficie de aproximadamente 34 hectáreas. Como proyecto ‘La Casona II’ representa un nuevo reto y tarea de planificación que busca establecer un complemento al modelo residencial y de comunidad que se formulo a finales de los años 90 y que gradualmente se viene implementando y transformando el paisaje agrícola-ganadero de la zona. Como oferta, la propuesta responde tanto a una demanda de habitar un lugar que ofrezca seguridad; una autentica identidad; servicios y naturaleza, como también la creciente necesidad de crear asentamientos humanos que se integren a su paisaje y este a los sistemas urbanos, postulando así a una coexistencia en balance con la biosfera. La visión general del plan maestro, aparte de servir como instrumento que especifica el futuro crecimiento de la comunidad, busca la creación de lugares dignos, donde familias puedan aspirar a un mejor mañana y convivir en una comunidad y medio físico saludable.








