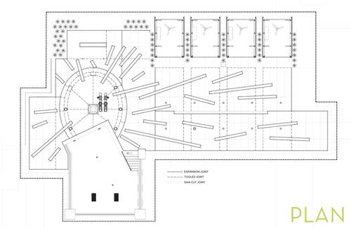
Hyatt Slide Tower & Pool
Commissioned by Hyatt Regency in Scottsdale, SBD-studio along with Circle West Architects were tasked with creating a new vision for the existing slide tower and pool complex. The slide tower was to become a much more impactful focal point to the pool area, whose concept was derived from the kinetic movement and permeability of the Arizona Desert. Due to the object nature of the new slide tower, SBD-studio wanted to play off its power by creating an explosion in the landscape. This new energy is generated by a fractured composition of "sticks" that derive from a single source; the slide tower. For the planting scheme SBD-studio chose a monoculture of Mexican thread grasses to not only provide actual kinetic movement, but to also to help soften the spaces. The main pool deck serves as a flex-space, where the hotel can choose to use it for a variety of functions such as pool lounging, weddings, corporate events, performances, etc.















